
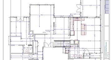
When we get back to the office with all that information, we draw your existing home in our design software - Chief Architect.

We use the old plans to create our new ideas. We try to utilize as much of the existing walls, wiring and plumbing to keep costs low.

We insert the materials you have selected to give you a real feel for your new space. This way we know the new space will work for you.

First we measure and photograph your home. We record all information such as room, window, door dimensions. We also look at your electrical panel and your boiler/furnace. We then draw the plans of your existing home.